|
Minto Longbranch SOLD
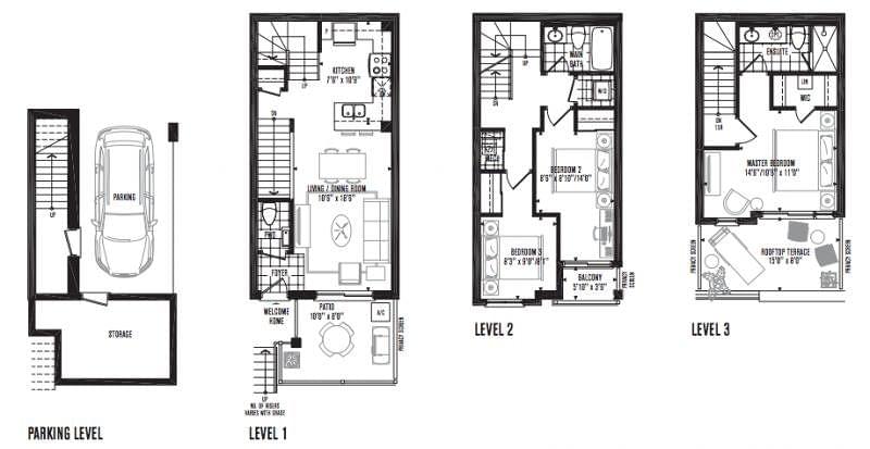
Long branch Layout was the most sought after layout on Day 1 on VIP access. Several of my clients received this unit allocation and now one of them has decided to let theirs go after purchasing another home from me in a different area. The "Longbranch" Layout features 3 Levels 3 bedrooms 3 washrooms 3 walkout spaces, a Patio for Entertaining, a Private Balcony From Bedroom 2 and a Master Bedroom Terrace and direct underground parking and storage room upgraded Kitchen with Stainless Steel Appliances and Granite Counter tops in the Kitchen. This is a rare layout with 1262 Square feet and no one living above or below you and maintenance fees at $0.21 /per square foot. On assignment with a November 2016 (this year) occupancy. You can try and comparison shop but I doubt you'll find a better deal for a similar home in the area. Most Sought After 3-Level Unit in Sold Out Phase 1. **This is an Assignment. Contact Albert@TheRedPin.com or Call me direct Albert 416-317-7087 |
